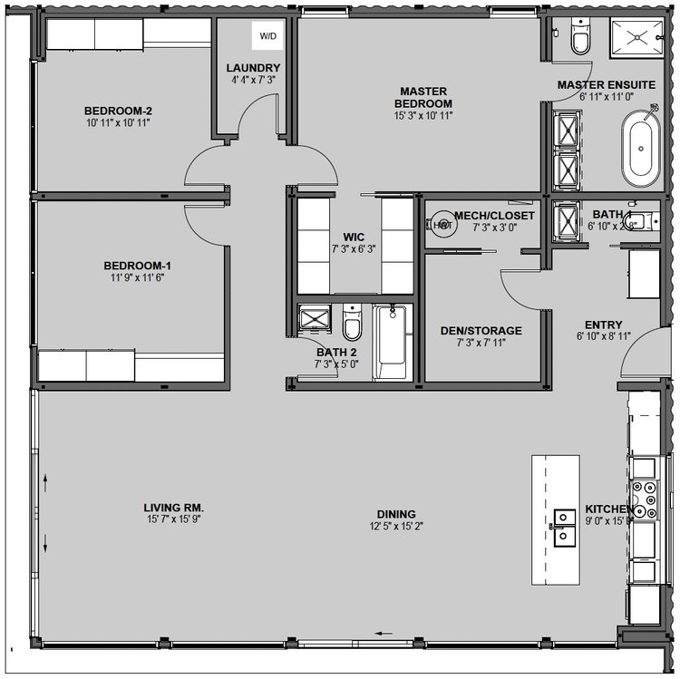
3 BED 2½ BATH | 1600 SQ. FEET | STARTING AT $417,319 USD
MODVERAX M5
The M5 is our largest model which is made up of 5 modules. Pick from our standard single wall of glazing or opt-in for the upgraded second wall of glazing for a truly remarkable indoor/outdoor connection.
UPCOMING M5 PROJECTS




































PRICING
What costs can I expect on top of the base MSRP?
Additional costs to consider are design and engineering, permit application and expediting, unit upgrades, shipping, crane work and onsite installation onto your prepared foundation.
The cost for the site and foundation work varies depending on many factors including; location, scope of work and site specifics. Our Process is designed to help you determine these costs by creating and establishing drawing packages specific to your project that can be used by your local contractor to provide you with accurate pricing
THE O SERIES PROCESS
At Odaly.com we simplify the build process. Our team will work with you through the process from our initial accessibility consultation, designing and engineering both the O Series and foundation specific to your site and goals to handing you the keys to your new Odaly Home.