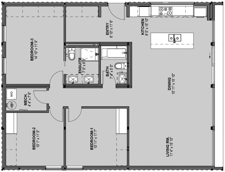
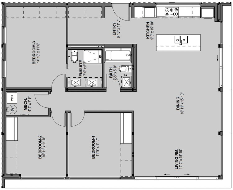
3 BED 2 BATH | 1280 SQ. FEET | STARTING AT $348,222 USD

MODVERAX M4

The M4 is a three bedroom two bathroom home ideal for indoor/outdoor living. The M4 replaces the M4+ and follows the evolution of our design by offering a revised floorplan along with the option to include a second wall of glass.

BUILD & PRICE YOUR M4

ONE WALL OF GLASS

download >

TWO WALLS OF GLASS

download >

UPCOMING M4 PROJECTS

M4

California, United States

learn more >

 

M4

Colorado, United States

learn more >

 

PRICING

  • What costs can I expect on top of the base MSRP?

    • Additional costs to consider are design and engineering, permit application and expediting, unit upgrades, shipping, crane work and onsite installation onto your prepared foundation.

    • The cost for the site and foundation work varies depending on many factors including; location, scope of work and site specifics. Our Process is designed to help you determine these costs by creating and establishing drawing packages specific to your project that can be used by your local contractor to provide you with accurate pricing

THE O SERIES PROCESS

At Odaly.com we simplify the build process. Our team will work with you through the process from our initial accessibility consultation, designing and engineering both the O Series and foundation specific to your site and goals to handing you the keys to your new Odaly Home.